
Dictámenes UVIE
Nosotros te proporcionamos el documento que certifica que tu instalación eléctrica cumple con la norma NOM-001-SEDE-2012 Instalaciones Eléctricas (Utilización)..
Código de Red 2.0
Te ofrecemos asesoría especializada para garantizar que tu instalación eléctrica cumpla con los requerimientos técnicos establecidos en el Código de Red 2.0.
Realizamos pruebas eléctricas que evalúan el funcionamiento, la seguridad y la integridad de tus equipos eléctricos. Nuestro objetivo es identificar posibles defectos y fallas.
Pruebas a Equipos Eléctricos
Ofrecemos soluciones especializadas en ingeniería eléctrica para garantizar la seguridad, eficiencia y cumplimiento normativo de tus instalaciones. Nuestro equipo de expertos está comprometido con brindar servicios de calidad, adaptados a las necesidades de cada cliente.
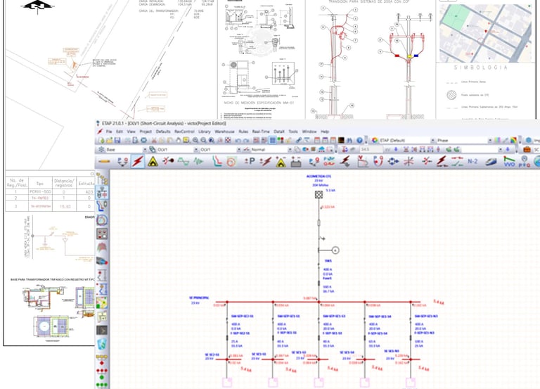
Desarrollo de Ingeniería Eléctrica
Te ayudamos a diseñar e implementar los proyectos ejecutivos que describen las características de diseño, instalación y funcionamiento de tu sistema eléctrico.














